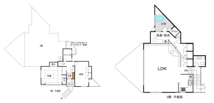
明るく広々としたリビングダイニングには暖炉があり、窓からは富士山が見えます。10畳の和室と寝室用の洋室もきれいです。
お風呂も明るく清潔で窓外には緑が広がっています。
価格:29,500,000円
間取り:2LDK
土地:788.00 ㎡

明るく広々としたリビングダイニングには暖炉があり、窓からは富士山が見えます。10畳の和室と寝室用の洋…
明るく広々としたリビングダイニングには暖炉があり、窓からは富士山が見えます。10畳の和室と寝室用の洋室もきれいです。
お風呂も明るく清潔で窓外には緑が広がっています。
価格:29,500,000円
間取り:2LDK
土地:788.00 ㎡





| 築年月 | 昭和60年12月3日新築 | 新築/中古 | 中古 |
|---|---|---|---|
| 面積 | 計測方式 | ||
| バルコニー | 向き | ||
| 建物階数 | 部屋階数 | ||
| 建物構造 | |||
| 間取内容 | |||
| 駐車場 | 取引態様 | ||
| 引渡/入居時期 | 即時 | 現況 | 空家 |
| 地目 | 原野 | 用途地域 | |
| 土地面積 | 788m² | 土地面積計測方式 | |
| 建ぺい率 | 20% | 容積率 | 20% |
| 接道方向1 | 東 | 接道間口1 | 4m |
| 周辺環境 | |||
| 設備・条件 | プロパンガス 排水浄化槽 | ||
| 物件番号 | 芙蓉台B-903 | ||
| 特記事項 | 1階54.97㎡ |
||
| 情報更新日 | 2025年10月07日 | 次回更新予定日 | 2026年01月05日 |