マンションの1階ながらリビングから富士山を望める物件です。
駐車場から玄関までのアプローチが近いので大変便利です。
四季折々の富士山の眺望が楽しめます。
価格:2,500,000円
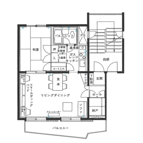
広さ:1LDK(43.74㎡)








- 価格
- 250万円
- 種別
- 中古マンション
- 間取
- 1LDK
-
- 所在地
- 山梨県南都留郡山中湖村平野字水ノ元2918 ヴィラ芙蓉台 O-101
- 交通
- バス (ままの森 停歩10分)
東富士五湖道路山中湖IC より約7.5km
物件詳細
| 築年月 | 昭和48年8月新築 | 新築/中古 | 中古 |
|---|---|---|---|
| 面積 | 計測方式 | ||
| バルコニー | 7.88m² | 向き | |
| 建物階数 | 部屋階数 | ||
| 建物構造 | |||
| 建築面積 | 43.74m² | ||
| 間取内容 | |||
| 駐車場 | 有り | 取引態様 | |
| 引渡/入居時期 | 即時 | 現況 | 空家 |
| 周辺環境 | |||
| 設備・条件 | ユニットバス バルコニー | ||
| 物件番号 | ヴィラ芙蓉台 O-101 | ||
| 特記事項 | 年額 207,265 円(税別)(積立修繕費・借地料を含む) |
||
| 情報更新日 | 2025年10月07日 | 次回更新予定日 | 2026年01月05日 |
※物件掲載内容と現況に相違がある場合は現況を優先と致します。









