最上階にあり、明るいお部屋になっています。バルコニーからは富士山と山中湖が良く見えます。









- 価格
- 300万円
- 種別
- 中古マンション
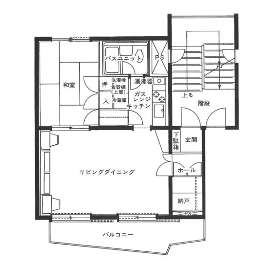
- 間取
- 1LDK
-
- 所在地
- 山梨県南都留郡山中湖村芙蓉台別荘地内
- 交通
東富士五湖道路山中湖ICより約7.5km
物件詳細
| 築年月 | 昭和49年8月15日 | 新築/中古 | 中古 |
|---|---|---|---|
| 面積 | 40.72m² | 計測方式 | 内法 |
| バルコニー | 7.88m² | 向き | |
| 建物階数 | 地上4階 | 部屋階数 | 4階 |
| 建物構造 | PC | ||
| 管理形態 | 管理人日勤 | ||
| 間取内容 | |||
| 駐車場 | 取引態様 | 仲介 | |
| 引渡/入居時期 | 相談 | 現況 | 空家 |
| 地目 | 山林 | 用途地域 | 無指定 |
| 都市計画 | 非線引き区域 | 地勢 | 傾斜地 |
| 土地面積 | m² | 土地面積計測方式 | 公簿 |
| 土地権利 | 普通賃借 | 接道状況 | |
| 周辺環境 | |||
| 設備・条件 | ガスコンロ ごみ出し24時間OK 給湯 ユニットバス エアコン 室内洗濯機置き場 プロパンガス 排水浄化槽 駐車場有 バルコニー | ||
| 物件番号 | M-P401 | ||
| 自社物 | 自社物 | 状態 | |
| 特記事項 | 管理共益費(年額)268,151円 ヴィラ芙蓉台管理規約 芙蓉台管理規程 水道名義変更料28,600円 |
||
| 情報更新日 | 2026年02月13日 | 次回更新予定日 | 2026年05月14日 |
※物件掲載内容と現況に相違がある場合は現況を優先と致します。













