山中湖と富士山が良く見えるプライベート感ある角部屋です。









- 価格
- 200万円
- 種別
- 中古マンション
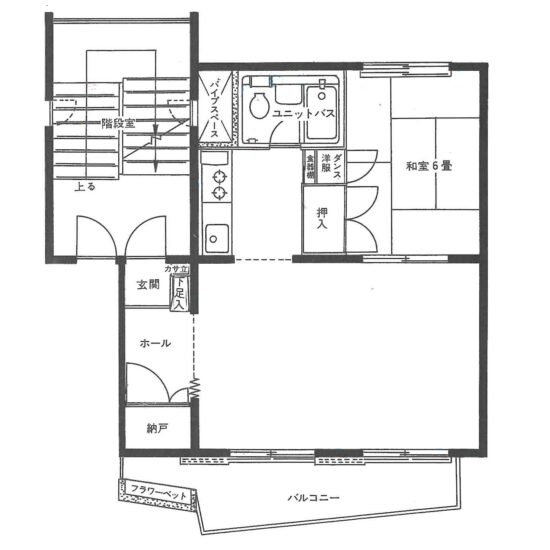
- 間取
- 1LDK
-
- 所在地
- 山梨県南都留郡山中湖村
- 交通
東富士五湖道路山中湖ICより約7.5km
物件詳細
| 築年月 | 1973/9/6 | 新築/中古 | 中古 |
|---|---|---|---|
| 面積 | 計測方式 | 内法 | |
| バルコニー | 7.88m² | 向き | |
| 建物階数 | 地上4階 | 部屋階数 | 4階 |
| 建物構造 | PC | ||
| 建築面積 | 40.72m² | ||
| 管理形態 | 管理人非常駐 | ||
| 間取内容 | |||
| 駐車場 | 有り | 取引態様 | 仲介 |
| 引渡/入居時期 | 現況 | ||
| 地目 | 原野 | 用途地域 | 無指定 |
| 都市計画 | 非線引き区域 | 地勢 | 傾斜地 |
| 土地面積 | m² | 土地面積計測方式 | 公簿 |
| セットバック | 有 | セットバック量 | |
| 建ぺい率 | 20% | 容積率 | 20% |
| 土地権利 | 賃借権 | 接道状況 | 一方 |
| 接道方向1 | 東 | 接道間口1 | |
| 接道種別1 | 接道幅員1 | 5m | |
| 周辺環境 | |||
| 設備・条件 | ガスコンロ 給湯 キッチン等水回り要改修。 |
||
| 物件番号 | |||
| 自社物 | 自社物 | 状態 | 売出中 |
| 特記事項 | 管理共益費(年額)249,239円 名義変更料28,600円 ヴィラ芙蓉台管理規約 芙蓉台管理規程 ※リフォームのご相談を承ります。 |
||
| 情報更新日 | 2026年02月01日 | 次回更新予定日 | 2026年05月02日 |
※物件掲載内容と現況に相違がある場合は現況を優先と致します。













